Qatar Office Building Curved Staircase Project 2018

PFM  Curved Staircase design

Qatar Office Building Project

PFM will give you good service

We represented as a subcontractor of a famous contracting company on year 2018, in Doha Qatar. Our cooperation was for a government p roject for Qatar's Installation of Gulf Area for 4 buildings and 1 mosque; including a mosque and four office buildings, one of them is for the Prime Minister of Qatar. We shipped more than 40 containers to the site within 2 months; catching the tight deadline. From the drawing confirmation, to the cutting to size. We perfectly achieved every target.

Other than material supply. We also provided labor for the installation. We brought the best craftsmen to install the marble tiles. Earning a great reputation for our quality materials, technical knowhow, and hard working spirit.

  • Time:2019
  • Location:  Doha, Qatar
  • Duration: 2 Months
  • Area:  500 m²
  • Material: Spanish crema marfil, Dark emperador marble, Railing
  • Application: Reception hall, Curved staircases, Exit staircase, Office
Qatar Curved Staircase 3d design
PFM Curved Staircase 3d design
Qatar office building PFM 3d design service
office building interior installation
Curved Staircase  Installation Completed
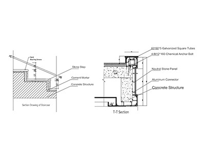
Curved Staircase grand staircase cad desgin
 Curved Staircase Under Installation By PFM Team
 Curved Staircase CAD design
Curved Staircase Under Installation By PFM Team
Curved Staircase Under Installation By PFM Team
Curved Staircase Under Installation By PFM Team
Curved Staircase grand staircase cad desgin
Curved Staircase Under Installation By PFM Team
Curved Staircase Under Installation By PFM Team
WhatsApp https://wa.me/8618620157245Phone 86-18620157245E-mail Susan@pfmstone.com
Stone & Building Art
Follow Us

Please send your message to us
With PFM there is a world of surfaces awaiting study. Our designer partners can discuss your project with specific cases. Let's now improve your home.
Send me information purchases
*Email
Name
Phone
*Title
*Content
Upload
  • Only supports .rar/.zip/.jpg/.png/.gif/.doc/.xls/.pdf, maximum 20MB.